【中古戸建住宅】山形市あこや町
★山形市役所まで徒歩35分
★あこや町交番まで徒歩5分
★ヤマザワあさひ町店まで徒歩12分
☆空き家バンク登録物件
■■DATA■■
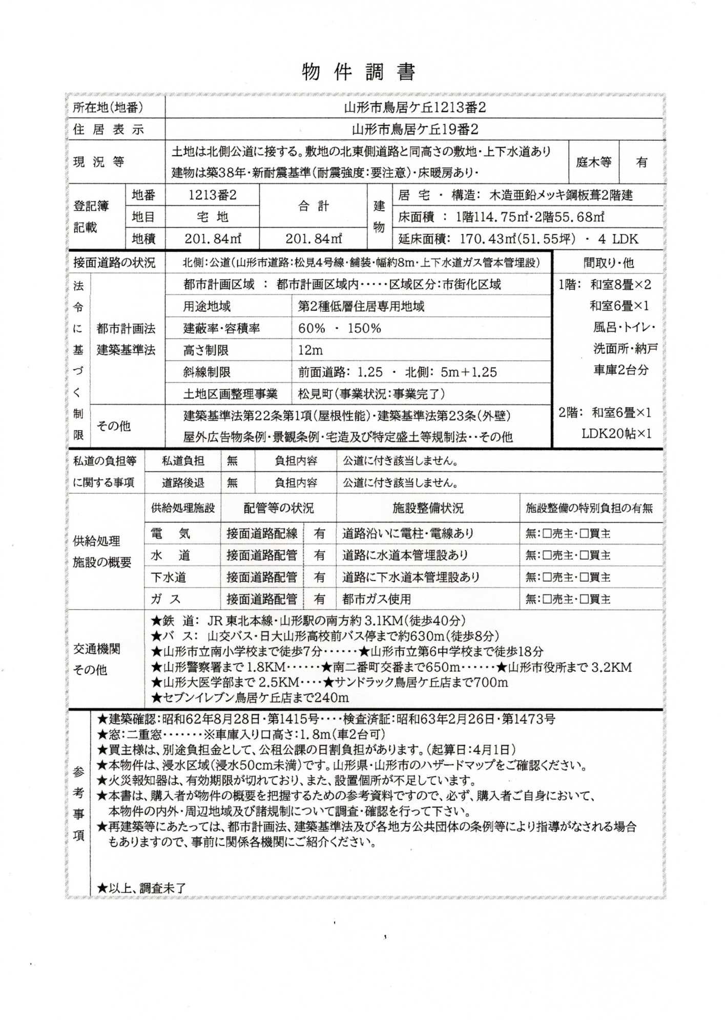
【所在地】山形市あこや町三丁目2番8
【価 格】金1800万円(税込)
★建物
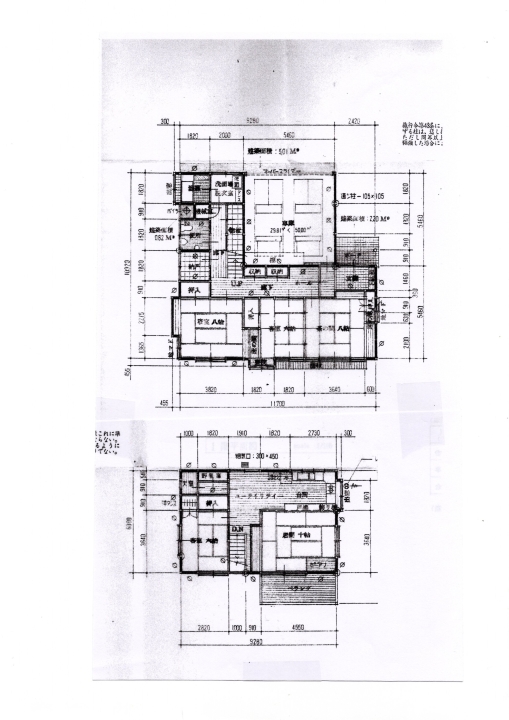
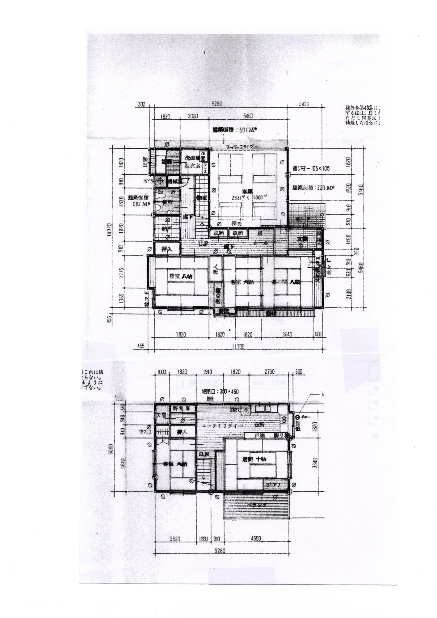
【構 造】 木造カラー鉄板葺2階建
【面 積】 157.71㎡
【間 取】 6DK
【築年月】 昭和44年10月新築
★土地
【土地権利】 所有権
【地 目】 宅地
【面 積】 公簿331.17㎡(約100坪)
【都市計画】 市街化区域
【用途地域】 第1種住居地域
【建蔽率】 60%
【容積率】 200%
【その他の制限】斜線制限・第2種高度地区
【駐車場】 有:3台
【現 況】 空き家
【引渡日】 応談
【建築確認】 新築:不明・増築:許可あり
【接道状況】 公道:6m幅・舗装あり・側溝あり
【設 備】 プロパンガス・上水道・下水道
電力:東北電力
【備 考】 ★物置あり(5.32㎡)
★建物の躯体等と全設備は老朽化のため
大幅な修補を要す
修補については買主負担となります
★現況有姿引渡し
★公租公課負担あり
★登記簿売買
★予約・成約の場合はご容赦ください。
【取引態様】 媒介
★あこや町交番まで徒歩5分
★ヤマザワあさひ町店まで徒歩12分
☆空き家バンク登録物件
■■DATA■■
【所在地】山形市あこや町三丁目2番8
【価 格】金1800万円(税込)
★建物
【構 造】 木造カラー鉄板葺2階建
【面 積】 157.71㎡
【間 取】 6DK
【築年月】 昭和44年10月新築
★土地
【土地権利】 所有権
【地 目】 宅地
【面 積】 公簿331.17㎡(約100坪)
【都市計画】 市街化区域
【用途地域】 第1種住居地域
【建蔽率】 60%
【容積率】 200%
【その他の制限】斜線制限・第2種高度地区
【駐車場】 有:3台
【現 況】 空き家
【引渡日】 応談
【建築確認】 新築:不明・増築:許可あり
【接道状況】 公道:6m幅・舗装あり・側溝あり
【設 備】 プロパンガス・上水道・下水道
電力:東北電力
【備 考】 ★物置あり(5.32㎡)
★建物の躯体等と全設備は老朽化のため
大幅な修補を要す
修補については買主負担となります
★現況有姿引渡し
★公租公課負担あり
★登記簿売買
★予約・成約の場合はご容赦ください。
【取引態様】 媒介











